mbr一體化污水處理工藝流程圖
mbr一體化污水處理工藝流程圖
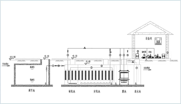
mbr一體化污水處理設備工藝流程說明
流程簡介:經過收集的生活污水及類似生活污水的廢水水流經格柵機,將較大的懸浮物去除后,流入調節池,在調節池內調節水質、水量。緩解水量水質對后續工藝的沖擊。
調節池中的污水經過潛水泵提升至MBR一體化污水處理設備中,本設備突出優點是利用MBR膜生物反應技術有利于不同微生物菌群的繁殖生長,因此脫氮除磷效果非常好。膜生物反應器處理后的水經抽吸泵抽吸后達標直接排放。
mbr一體化污水處理工藝流程圖展示

MBR一體化設備的優勢
中僑啟迪MBR是一款智能化裝備,本設備為我司自主研發設備,擁有自主知識產權。(專利號:ZL201521138591.5)
MBR一體化裝置在設計中優點如下:
技術先進
1、模塊設計:采用獨特的外觀及高度集成模塊化設計,可以根據實際情況將缺氧池、膜池及控制室分開設計和安裝,便于運輸。
2、新型技術:集成新型膜技術及生物模擬技術,脫氮除磷效果好、剩余污泥量少,處理流程短,無需沉淀、砂濾環節;
3、智能控制:采用智能監控技術,可實現全自動操作,運行穩定、操作直觀簡便;

使用省心
1、減少投資:小型分散就地處理方式替代集中式污水處理,無需大規模開挖鋪設管道和建設構筑物,投資成本低;
2、建設快捷:占地面積僅有傳統再生處理工藝的30-50%,基建工程量少,只需建設設備基礎,接管處理即可再生回用,省工省時省地;
3、低運行費:直接運行成本低,高性能超濾膜組件,使用壽命更長。
成效顯著
1、優質出水:出水水質穩定,污染物指標完全優于《城鎮污水處理廠排放標準》(GB18918-2002)一級A標準,并且主要排放指標優于《城市污水再生利用城市雜用水水質》(GB/T 18920-2002)標準;
2、節能環保:低運行費用,運行過程無噪音、無異味、剩余有機污泥量少。

mbr一體化污水處理工藝流程圖-生產車間
MBR工藝的優點:
① 出水水質穩定,浸沒式超濾是以膜分離過程取代傳統工藝中的重力沉淀,解決了由顆粒沉降性決定處理結果的技術難題,恒定的過濾精度對于產水水質和運行情況的變化均有很強的適應性,能很好地實現固液分離,保證出水水質。
② 工藝簡單。與傳統物化、重力沉淀、柱式超濾相比,工藝更為簡單,也易于管理。
③ 占地面積小,由于膜的高效分離作用,還可節省重力沉淀空間、過濾等固液分離設備,且出水懸浮物濃度遠低于傳統固液分離設備,使整個設備流程簡單,易于集成,設備占地大為縮小。
④ 管理簡單方便、自動控制化程度高、運行成本低,整機能夠實現自動間歇運行,設備泵閥自動遵照程序啟停,設有水位自動控制、膜污染控制、故障報警等控制,管理和操作更為方便,并可節省加藥消毒、清洗所帶來的長期運行費用。

設備廠家
山東中僑啟迪專注于一體化污水處理設備設備研發生產10年+,是一家集技術研發、項目設計、設備制造、工程安裝、調試運營、技術咨詢服務為一體的高新技術企業。?
公司主要經營:一體化污水處理設備、氣浮機、過濾器;多年來致力研發、創新、深耕一體化污水處理設備,追求精益求精;助推水處理技術及制造行業的前進。并陸續推出了中僑箱、中僑罐、MBBR一體化污水處理設備、QDPP一體化污水處理設備等核心產品。
旗下的中僑啟迪(山東)新材料有限公司,投入了一體成型PP新材料罐體生產線、MBBR生產線、PP焊條生產線,同時擁有新型塑料制品的大型自動焊臥焊、自動焊立焊、大型雕刻機、折彎機、碰焊機、下料機等加工設備,基于新材料罐體的特性和工藝改良,并采用自產的MBBR填料,又推出了新產品:中僑罐臥罐A/B、中僑罐立罐A/B。
公司具有雄厚的技術實力和一批獻身于水處理事業的科技人員,具備環保工程專業承包三級資質、安全生產許可證、50余項實用新型專利、5項發明專利及1項國際發明專利、27項軟件著作權、通過中環協CEP認證、三體系認證證書;同時擁有“專精特新”“企業技術中心”“山東知名品牌”“一企一技術研發中心”“濰坊市工業設計中心”“濰坊市隱形冠軍”“濰坊市重點實驗室”“ANSO環境科技產業聯盟理事單位”等多項稱號和榮譽;擁有經驗豐富的設計、運算團隊,有著高水平、高素質的生產團隊,配套高粘度專業服務的業務人員,細致高效、響應快速的售后團隊。





